Wolverhampton Bowling Green Set for Transformation into 11 New Family Homes
Plans for the redevelopment of a former bowling green into 11 private dwellings have been formally submitted to Wolverhampton City Council. The application, lodged by Dyal Homes on March 13, proposes converting the site on Mortice Lane in Wednesfield into a collection of family homes complete with associated carparking and landscaping features.
Site Details and Historical Context
The site, measuring 3,081 square metres, was last used as a bowling club in January 2021. It is situated just off Woden Road and forms part of a larger residential development that has already been completed. According to the design and access statement prepared by Thorne Architecture, the new proposal aligns with the existing neighborhood character.
The planning application, referenced as 24/01244/FUL, builds upon previous approvals for a mixed development of apartments and houses totaling 15 dwellings. The current submission represents a revised approach, reducing the initial proposal from 12 to 11 dwellings to avoid overcrowding and preserve the amenity of neighboring properties.
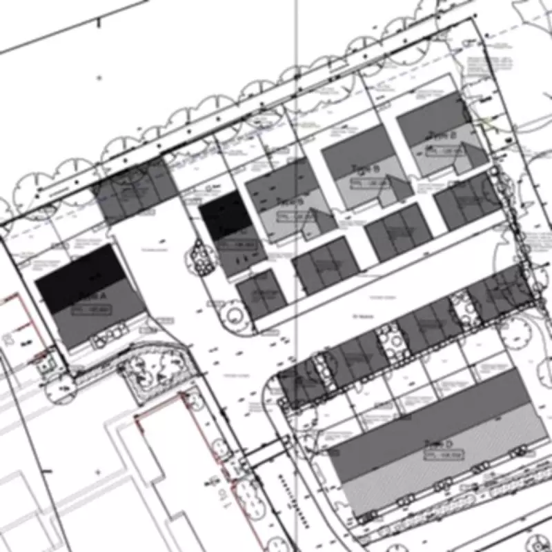
Design and Layout Specifications
The revised development plan includes a mix of four and three-bedroom dwellings in various configurations. Specifically, eight houses will feature three bedrooms, while three will offer four or more bedrooms. The design emphasizes contemporary aesthetics, incorporating materials such as aluminium cladding and black composite cladding to blend with the existing residential environment.
A new public access road will be constructed within the site, providing entry to dedicated parking areas. The proposal allocates 26 parking spaces based on guidelines: two spaces per three-bedroom dwelling and three spaces per four-bedroom dwelling, in accordance with SPG 3 standards.
Community and Environmental Considerations
The layout is designed to create defensible space between the frontage buildings and rear boundaries, enhancing privacy and security for residents. High-quality paving and landscaping materials will be used throughout the development to ensure visual cohesion and environmental sustainability.
This project reflects ongoing efforts to repurpose underutilized urban spaces for residential use, addressing housing needs while integrating with established communities. The application is now under review by Wolverhampton City Council, with a decision expected following standard planning procedures.



